9 Wheeler Place, Unit A, B
Palm Coast, FL 32164

Listed at $424,900

Details

  • MLS# O6395372
  • Residential - Single Family
  • Status Active
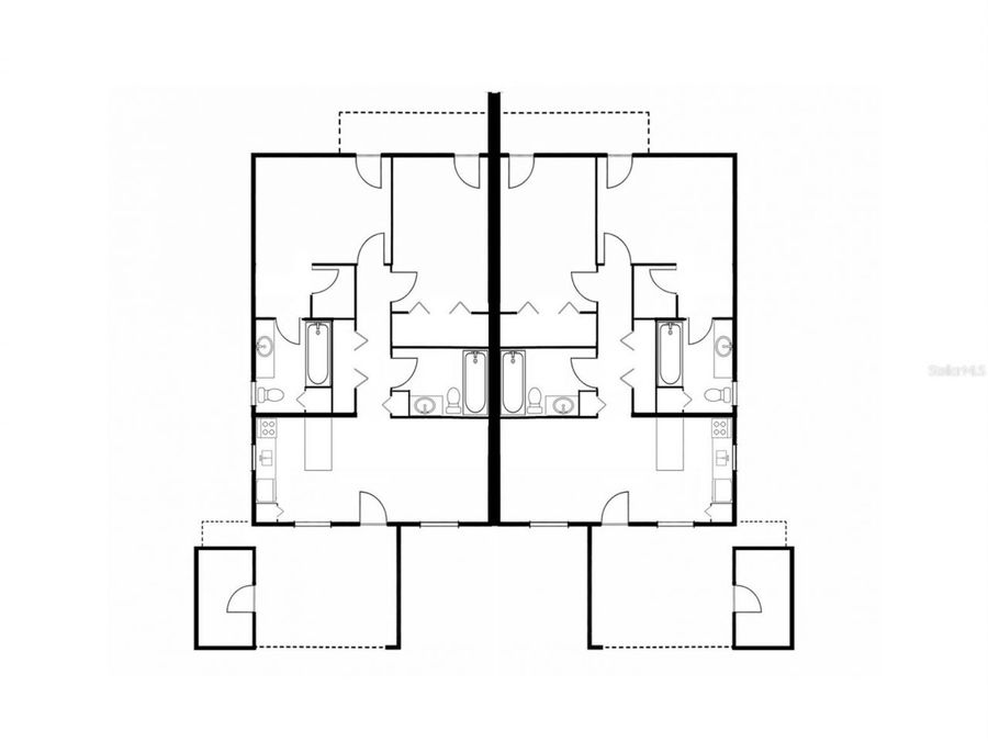
  • 4 Bedrooms
  • 4 full Bathrooms
  • 2,028 Square Feet
  • 0.250 acres
  • Built in 2000
  • Local Schools

Description

House Hack your way to home ownership! Unlock the potential of income-producing real estate with this well-maintained concrete block DUPLEX in Palm Coast, a growing community known for its charm and many conveniences. Situated on a quarter acre lot, this property offers the perfect blend of stability and opportunity, with established tenants already in place providing immediate, steady income from day one. Each of the two units features a functional and desirable layout with two bedrooms, two full bathrooms, laundry closet, independent entry, a dedicated carport, and private storage rooms. Durable tile flooring, updated appliances, and solid...read more block construction delivers long-term low maintenance. The property is in excellent condition, making it a truly turnkey investment. Just a short drive to the beautiful beaches of Flagler County, 35 mins to historic St. Augustine, and 30 minutes to the Daytona Speedway and International Airport. Enjoy stunning state parks, local trails, and community events. Ideal for investors, first-time buyers looking to offset expenses, those planning for multi-generational living, or anyone seeking a smart alternative to downsizing, this property checks all the boxes for both lifestyle and long-term financial growth. Owning a multi-family property opens the door to many advantages. Whether youre an investor or an owner-occupant, this property supports living in one unit while rental income from the other helps offsets expenses. UNIT A and UNIT B. Roof 2022. HVAC 2019 (x2). WH 2019 (x2).

Features

  • Dishwasher
  • Dryer
  • Range
  • Refrigerator
  • Washer
  • Central Air
  • Ceramic Tile
  • Tile
  • Central, Electric
  • 1.0 Story
  • $5,298 Taxes
  • Public
  • Built in 2000
View All Features

Contact the Agent

Contact the Listing Agent
Disclaimer: All information deemed reliable but not guaranteed. All properties are subject to prior sale, change or withdrawal. Neither listing broker(s) or information provider(s) shall be responsible for any typographical errors, misinformation, misprints and shall be held totally harmless. Listing(s) information is provided for consumers personal, non-commercial use and may not be used for any purpose other than to identify prospective properties consumers may be interested in purchasing. Information on this site was last updated 04/28/2026. The listing information on this page last changed on 04/28/2026. The data relating to real estate for sale on this website comes in part from the Internet Data Exchange program of Delta Media Group MLS (last updated Tue 04/28/2026 12:04:43 AM EST) or Miami MLS (last updated Mon 04/27/2026 11:58:29 PM EST) or Stellar MLS (last updated Mon 04/27/2026 11:59:09 PM EST) or Daytona MLS (last updated Mon 04/27/2026 11:36:44 PM EST) or Tallahassee MLS (last updated Mon 04/27/2026 10:48:19 PM EST) or Northeast Florida MLS (last updated Mon 04/27/2026 11:58:56 PM EST) or My State MLS (last updated Mon 04/27/2026 11:30:12 PM EST) or Florida Keys MLS (last updated Mon 04/27/2026 8:29:54 PM EST). Real estate listings held by brokerage firms other than Adams Cameron & Co. REALTORS may be marked with the Internet Data Exchange logo and detailed information about those properties will include the name of the listing broker(s) when required by the MLS. All rights reserved.

mls logo
Listing data and photos distributed by MLSGRID
Member Participants (and their affiliated licensees, if applicable) shall indicate on their websites that IDX information is provided exclusively for consumers’ personal non-commercial use, that it may not be used for any purpose other than to identify prospective properties consumers may be interested in purchasing, that the data is deemed reliable but is not guaranteed by MLS GRID, and that the use of the MLS GRID Data may be subject to an end user license agreement prescribed by the Member Participant’s applicable MLS if any and as amended from time to time. MLS GRID may, at its discretion, require use of other disclaimers as necessary to protect Member Participant, and/or their MLS from liability.
Based on information submitted to the MLS GRID. All data is obtained from various sources and may not have been verified by broker or MLS GRID. Supplied Open House Information is subject to change without notice. All information should be independently reviewed and verified for accuracy. Properties may or may not be listed by the office/agent presenting the information.



Privacy Policy / DMCA Notice / ADA Accessibility

Property Image 1
Property Image 2
Property Image 3
Property Image 4
Property Image 5
Property Image 6
Property Image 7
Property Image 8
Property Image 9
Property Image 10
Property Image 11
Property Image 12
Property Image 13
Property Image 14
Property Image 15
Property Image 16
Property Image 17
Property Image 18
Property Image 19
Property Image 20
Property Image 21
Property Image 22
Property Image 23
Property Image 24
Property Image 25
Property Image 26
Property Image 27
Property Image 28
Property Image 29
Property Image 30
Property Image 31
Property Image 32
Property Image 33
Property Image 34
Property Image 35
Property Image 36
Property Image 37
Property Image 38
Property Image 39
Property Image 40
Property Image 41

All Property Features

  • Property Type: Residential - Single Family
  • Appliances: Dishwasher, Dryer, Range, Refrigerator, Washer
  • Cooling: Central Air
  • Days on Site: 27
  • Directions: From Belle Terre Pkwy or Palm Coast Pkwy take Pine Lakes Pkwy to Whirlaway Dr. then RIGHT on Wheatfield Dr. LEFT on to Whetstone Ln then LEFT on Wheeler Place. Property is set back off the cul-de-sac at the far end of the long driveway.
  • Exterior: Block, Stucco
  • Exterior Features: Storage
  • Flood Zone Code: X
  • Flooring: Ceramic Tile, Tile
  • Foundation: Slab
  • Heating: Central, Electric
  • Home Style: Florida
  • Home Warranty Y/N: No
  • Interior Features: Ceiling Fans(s), Kitchen/Family Room Combo, Open Floorplan, Primary Bedroom Main Floor
  • Listing Terms: Cash, Conventional, FHA, VA Loan
  • Lot Description: Cul-De-Sac
  • Lot Dimensions: 0.25
  • Lot Size: 0.25 Acres
  • Other Structures: Storage
  • Ownership: Fee Simple
  • Parking: Covered
  • Parking Notes: Covered
  • Patio/Porch: Covered, Front Porch
  • Property Attached Y/N: Yes
  • Property Sub-Type: Single Family Residence
  • Roof Type: Shingle
  • Sewer: Holding Tank, Public Sewer
  • Showing Instructions: Appointment Only, Call Listing Office, Do Not Contact Tenants, Listing Agent Must Accompany
  • Special Sale Provisions: None
  • Stories: 1.0
  • Taxes: $5,298
  • Utilities: Cable Available, Electricity Connected, Phone Available, Public, Underground Utilities, Water Connected
  • Water: Public
  • Water Access Y/N: No
  • Year Built: 2000
  • Zoning: DPX